Kuzman KKCH_32.jpg

Kiddy Kitty Court House

KIDDY KITTY COURT HOUSE
MOONEE PONDS

Residential alterations and additions to a heritage arts and crafts cottage in Moonee Ponds for a growing family whose brief was to create a joyous home for kiddys, kittys and sport loving grown ups.

Completed 2022

Photography: Tess Kelly

Built: Sargant Constructions

Landscape Design: Three Acres LA

Sitting Room: Sister Chair by Dowel Jones, Albizzate tube chair from CCSS, brass tables & danish desk from Angelucci 20th Century

Living room: ‘Bonza’ artwork by Ruby MacKinnon, artwork by Kamara Morgan. Link: artwork by Eduardo De Luca


 
Sandi and Anna designed us a beautiful home, and really considered our family and needs. There are so many things they thought of that we never would have and the result is just lovely!
— Ben & Hester - Owner
 
 

THE PROJECT & CLIENTS

Kiddy Kitty Court House is an alteration and additions project to an arts and crafts cottage in Moonee Ponds, Melbourne. The owners, AFL player Ben Brown and marriage celebrant Hester Brown, came to us as excited parents to be. They loved their charming 2-bedroom cottage in Moonee Ponds but recognised it would not meet the demands of a growing family. Their brief was to create a family home that was light, bright, and joyous to accommodate their future kiddy’s, two kitty’s, and their busy sport loving lives.

THE BRIEF

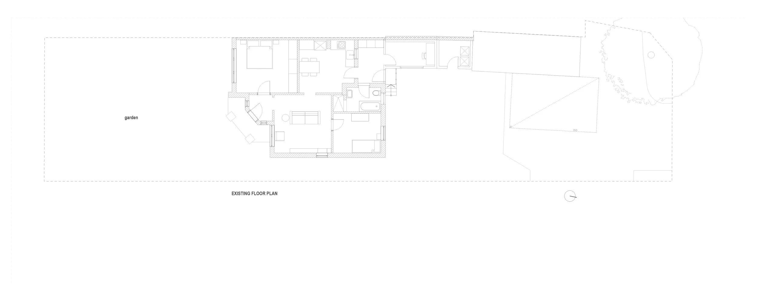
The existing cottage consisted of 2 bedrooms, a charm filled living room, a small combined kitchen eating area and the cutest original bathroom with blue and pink tiles and matching blue fixtures. Although charming, the house was small, cut off from its large north facing garden, had no heating or cooling and with a 2m tall owner there were issues around head heights (Ben would hit his head while cooking!)

The brief from Ben and Hester was to provide 2 additional kids bedrooms with adjoining bathroom, a large open plan living and dining and kitchen to accommodate large family gatherings. An important space to define for Hester was a separate office and welcoming sitting room for her client meetings. This space needed to be able to shut-down or open-up to the main house, as required. Hester also wanted a retreat to pamper and bath that had an expansive garden view. In addition to the functional brief was the owners desire to retain the character of the cottage, and ensure charm and personality was carried through the new house additions.

THE DESIGN INTENT & OUTCOME

We set about designing with the intention to minimise alterations the original fabric of the cottage - both for heritage value and cost savings. The original vestibule, sitting room and both bedrooms were retained. The sitting room and 2nd bedroom, with polished original timber floorboards and soft pink rendered walls, now perform as Hester’s reception rooms for her thriving celebrants business. A large arched pomanian pink door shuts this space down during client meetings or is opened up to hustle of family life as a second living space.

The existing kitchen was demolished and converted into a WIR and ensuite with double arched vanities and separate step-down wet room. A walk-in shower and freestanding bath sits in front of full height glazing overlooking a fern filled courtyard. Pink floor tiles and arches with coloured grout accents continue the aesthetic of the house, which was inspired by the cottages original pink and blue bathroom that sadly was demolished. The blue bathroom fixtures from the original bathroom were repurposed in the kids bathroom to ensure that charm was not limited to the original cottage only.

The pink arched door signifies the end of the original cottage. A new glazed link connects the cottage to a new two storey wing. Fern filled courtyards flank either side of the link filtering light and ventilation through both old and new sections of the house. Separating the old and new sections provided the opportunity to retain the Northern exposure for the cottage while still maximising Northern frontage for the new addition.  The main central courtyard also fulfilled the brief for a secure shaded kitty space. Terracotta tiles lead down to the new living area, or up timber stairs to the kids zone.

Once within the new living area light streams in and views peer out to various courtyard and garden spaces. The polished concrete floor, white walls and large expanses of glass are interjected with warm timber joinery and brick plinth seating elements. The joinery conceals an active life - footballs, basketballs, children’s toys, board games and tv - that can all be shut away during moments of calm. The combined kitchen, pantry and laundry space becomes a hub for cooking, prep, craft, cat stuff, storage and washing on the go. An arched chalkboard is a playful organiser for a busy family, and lots of fun for the kids.

Painted white exposed rafters and detailed dowel joinery provides texture and pattern which is repeated up the stairwell and into the kids room robes. It results in the connection of spaces and the effect is light and somewhat playful. The 2 bedroom kids zone is white and lofty with splashes of colour and whimsy. The bathroom, although compact, has ample storage in under seat drawers that also provides a comfy spot for grown-ups during bath time.

THE MATERIALS

Ben & Hester wanted a thoughtful renovation and new addition to their house: they did not want unnecessary waste, oversized spaces, elaborate claddings or high maintenance. The exterior of the house was derived from pure simple forms with a robust minimal material pallet in shades of white.

The interior material pallet was kept simple and robust with extensive use of white laminate joinery and timber veneer. Pops of coloured grout, and tiles and white timber detailing add visual interest and charm. The focus is all about light, colour, texture, and pattern: reinforcing the houses liveability and lovability. 

SUSTAINABILITY

The front heritage section of the house had high-level insulation added to the ceiling and windows replaced with double glazed to bring the house up to meet modern energy efficiency standards. The new addition is North facing with large expanses of glass for maximum solar gain. The floor layout has an abundance of window openings that enable good ventilation and cross flow. The new additions have high-level insulation added to walls, ceiling and under the concrete slab and double gazing throughout. The orientation, double glazing and the thermal mass from the polished concrete floor makes for a warm house in winter barely needing mechanical heating during the day. The house uses LED lighting and has had a new 6kW solar system. The site has an 4000ltr rainwater harvesting system that is used to irrigate the garden and is connected for toilet flushing.